| 物件番号 | C-0001 | 所在地 | 安八郡輪之内町楡俣字船付1307番1 外1筆 |
|---|---|---|---|
| 価格 | 1,388万円 | 坪単価 | 約2.5万円 |
| 土地面積(公簿) | 土地面積(実測) | 1815.16㎡(約549.08坪) | |
| 私道負担 | 無 | 都市計画 | 非線引き区域 |
| 建ぺい率 | 60% | 地目 | 宅地 |
| 用途地域 | 無指定 | 容積率 | 200% |
| 国土法届 | 不要 | 引渡 | 相談 |
| 設備 | 上水道・浄化槽・プロパン | 接道状況 | ※西側幅員約6m道路に約38m接面 ※南側幅員約3m道路に約25m接面 |
| 交通 | バス停「楡俣南部」 徒歩約11分 | 取引態様 | 売主 |
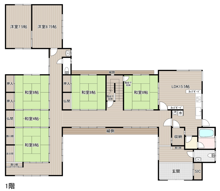
| 備考 | ※現況渡しです。 ※居宅:木造瓦葺2階建 昭和62年10月25日新築 床面積:1階/208.60㎡ 2階/54.65㎡ ※物置:軽量鉄骨造スレートぶき平家建 床面積:28.24㎡ ※居宅・物置:木造かわらぶき2階建 床面積:1階/71.34㎡ 2階/24.75㎡ ※学校区:大薮小学校・輪之内中学校 ※内見要予約 ※心理的瑕疵あり(自然死) |
||
| 資料 | >>資料ダウンロード(PDF形式) | ||