| 物件番号 | C-0013 | 所在地 | 安八郡輪之内町楡俣新田字一丁田363番、364番 |
|---|---|---|---|
| 価格 | 750万円 | 坪単価 | 約5.2万円 |
| 土地面積(公簿) | 472.72㎡(約142.99坪) | 土地面積(実測) | |
| 私道負担 | 無 | 都市計画 | 非線引区域 |
| 建ぺい率 | 60% | 地目 | 宅地 |
| 用途地域 | 無指定 | 容積率 | 200% |
| 国土法届 | 不要 | 引渡 | 相談 |
| 設備 | 上水道・汲取り・ボイラー・電気 | 接道状況 | ※北側幅員約6mの公道に約18m接面 ※東側幅員約4mの公道に約28m接面 |
| 交通 | 輪之内コミュニティーバス「楡俣新田」 徒歩約2分 | 取引態様 | 一般媒介 |
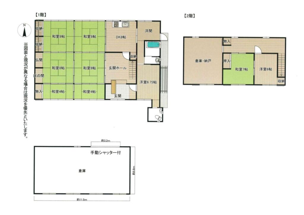
| 備考 | ※現況渡しです。 ※建物はすべて未登記です。(居宅:10DK+手動シャッター付倉庫) ※上水道の引込管は13mmです。 ※下水道は引込済みですが、接続はしていません。 (下水道受益者負担金は支払い済みです。) ※学校区:大藪小学校・輪之内中学校 |
||
| 資料 | >>資料ダウンロード(PDF形式) | ||